冷凝器在線清洗裝置
一、產品介紹
中央空調冷凝器、蒸發器管道極易結垢,正常在夏季供冷期應該做日常水處理,否則在高硬度水質的環境下運行,循環水系統內溶于水中的無機鹽就會隨著溫度的升高結晶析出,在冷凝器換熱面管壁上形成水垢,導致熱交換效率降低。同時硬垢增加,則能耗上升,結硬質水垢1mm厚時會增加6%~10%;由于水的泥土、泥沙、腐殖物形成污垢,加上細菌、藻類等微生物及其分泌物形成的生物粘泥,會附著在冷凝器換熱管壁上形成泥垢,嚴重時造成管路堵塞;而污垢、粘泥會影響熱交換效率,多耗電能,造成高壓運行,嚴重時造成超壓停機。所有這些嚴重地影響了換熱設備的正常運行。
冷凝器在線清洗裝置是對中央空調主機冷卻管進行有效清洗的最佳設備。該裝置使用性能的好壞直接影響到主機冷卻管的清洗程度和傳熱效果。近年來中央空調的市場拓寬,冷凝器在線清洗裝置廣泛用于中央空調主機清洗工作,在連續工作不降低負荷的情況下,可以隨時在線清洗,能始終保持冷卻管的清潔狀態,能延長冷卻管的使用壽命,減輕勞動強度,增加經濟效益。冷凝器在線清洗裝置是中央空調安全經濟運行不可缺少的裝置。
?
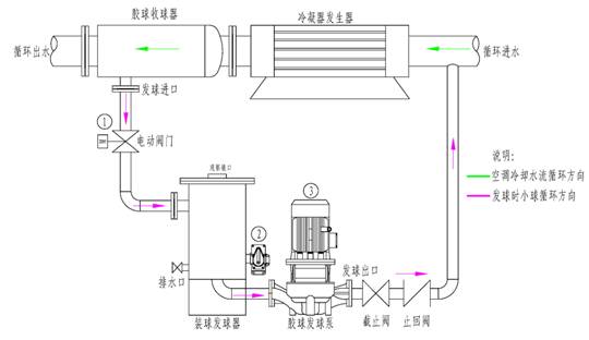
二、工作原理
將膠球通過發球器發送入冷凝器中,膠球依靠冷卻水的高流速擦洗掉冷凝器換熱銅管內壁的污垢,在冷卻水出水口端通過收球器回收膠球,經收球管回至集球驅球器形成一個清洗循環。通過西門子PLC智能控制箱設置清洗頻率,達到自動在線清洗功能,始終保持冷凝器內壁潔凈,換熱效率最高,冷水機組制冷效率最高。
?
?
三、冷凝器在線清洗裝置的組成部分
發球器
??? 發球器是膠球自動清洗系統中用于裝球、驅球和觀察膠球運行情況的設備。它主要由外殼、頂蓋、收球斗、切換閥、進口管及出口管和單向閥組成。在頂蓋上鑲裝有機玻璃觀察窗,在外殼下部裝有放水口。球水分離器和發球器設計有足夠的容積,以保證膠球在球水分離器和發球器內有回旋的空間。其中收球斗、切換閥、單向閥均采用304不銹鋼制造。由于在發球器中設計有獨特的單向閥裝置,從而取消了原來的電動門,不僅簡化了膠球清洗系統及運行操作,而且便于實現自動控制,提高了運行的可靠性。
???????????????????????? ????????????????????????????收球器
收球器
收球器是冷凝器進行膠球清洗過程中的關鍵組成設備之一。要維持膠球對冷凝管的連續清洗,就要將膠球源源不斷地送入清洗系統中,再將清洗過冷卻管的膠球及時回收,再次用于清洗之用。收球器就是用來把分散在冷卻水中的膠球全部收集起來的,以便重復使用,所以收球器的收球率很重要。收球器的網板采用304不銹鋼材料、抗腐蝕、抗沖擊、耐老化。
?
膠球
膠球一般使用的種類為標準剝皮膠球、普通膠球、金剛砂膠球。
(1)標準剝皮膠球
??? 標準剝皮膠球特別適用于各種凝汽器銅管,標準剝皮膠球也是各發電廠最常用的一種膠球。膠球由天然橡膠加發泡和特殊添加劑制造而成。標準剝皮膠球可以用于各種膠球清洗設備和水質。
??? 剝皮膠球有效去除生物污垢、高粘性生物污垢。適用于不銹鋼管以及鈦合金管換熱器。
(2)普通膠球?
??? 普通膠球表面光滑,主要用于可再剝皮磨打后制成標準剝皮膠球,一些發電廠因管道無較硬沉積才定購光膠球,一般用于不銹鋼管。但對銅管使用的效果不佳。??
? ??主要用于去除軟性污垢,適用于冷卻水應用場合,淤泥、粘泥、泥砂等.適用于銅管換熱器。?
(3)金剛砂膠球
金剛砂膠球分為全金剛砂膠球和半金剛砂膠球兩種。金剛砂膠球適用于清除各種結垢沉積較多的管道,但對管子有傷害,一般不長期使用,特別銅管更慎用。?有效去除硬質結垢,如:碳酸鈣。適用于鋼管、不銹鋼管換熱器。

膠球發球泵
??? 立式膠球發球泵采用直連式結構,具有同心度好,體積小,效率高,抽吸力大,拆裝便利,承壓等級16公斤等長處,是冷凝器在線清洗裝置首選產品。
膠球發球泵采用圓柱形葉片,通道式的葉輪結構。膠球可以在泵腔內自由通過,不堵球,不損球。膠球可以通過膠球泵反復輸送到主機的銅管中對污垢進行沖洗,收球率達到100%。解決了老設備靠牽引來收球的難題。
?
西門子PLC智能控制箱
??? 控制箱采用A3碳鋼噴塑材質??刂葡渫鈿げ馁|采用A3碳鋼噴塑,內含西門子PLC。PLC可編程序控制器體積小巧,功能全面,使用范圍可覆蓋從替代繼電器的簡單控制到更復雜的自動化控制,從而實現對冷凝器在線清洗裝置的在線監控和操作。
?
四、性能要求
1、清洗裝置額發球速度應能保證所有膠球到達冷凝器前端板的時間差控制在5s之內,使每個膠球能同時清洗不同的換熱管。
2、清洗裝置應能正常回收膠球,不漏球,不積球。
3、捕球器水阻:當名義額定流速小于3.0m/s,在捕球網面清潔時,局部阻力損失應在0.5m水柱以內。
?
?
五、冷凝器在線清洗裝置的特點
1、最低節能10%,最高可達40%,收球率可達99%。
2、不到一年時間可回收一次性投入成本。
3、自動在線清洗,保證冷凝器無任何積垢、腐蝕。
4、避免和消除空調主機運行時所出現的不正常高壓狀態。
5、增加壓縮機及管路使用壽命。
6、保證冷凝器處于最高換熱效率狀態。
7、完全物理處理,節省化學處理成本,保護環境。
8、PLC電腦程序全程控制,無需技術員專人維護,可調控每天自動清洗冷凝器次數。
?
六、使用方法
A、產品操作
1、調到手動狀態:先開閥2,再開閥1,然后把泵打開,開始發球。(客戶可自行調節運行時間)
2、調到自動狀態:運行時間設定周期為5小時一次(出廠已設定),閥1閥2同時開,1分鐘后再把泵打開,運行。
3、清洗時間共7分鐘,第3分鐘的時候關閥2,開始收球,到第7分鐘的時候關閥1和泵。
B、采集信號:
1、將從站地址設為2,將端口0設為9600波特,將奇偶校驗設為偶數。
2、允許存取所有的I 、Q和AI數值,允許存取2臺保存寄存器(4個字節)從VB0開始。
S7-200與Modbus地址對照表
???? Modbus 地址????? S7-200地址
????? 00001?????????? ???Q0.0
????? 00002????????????? Q0.1
????? 00003????????????? Q0.2
????? 10001????????????? I0.0
????? 10002????????????? I0.1
????? 10003????????????? I0.2
????? 10004????????????? I0.3
????? 10005????????????? I0.4
????? 10006????????????? I0.5
????? 10007????????????? I0.6
C、正常投球量
??? 為冷凝器單側單流程冷卻管根數7%-13%,依膠球循環一次所需時間的長短,取下限或上限或其接近值,膠球循環一次的時間一般以30秒作為界限。
膠球補充周期或更換周期
??? 膠球補充周期為膠球清洗系統累計運行7次,也可根據本單位具體情況不同調整補充周期。膠球更換周期,根據國產球使用統計,其更換周期為膠球清洗系統累計運行60次。
另外,在水中浸泡一段時間后,個別膠球可能脹大過多,致使直徑超標,在補充和更換膠球時,均應及時換掉,以防冷卻管被堵。
?
七、設備安裝注意事項
中央空調循環水系統過濾器要求
1、過濾精度為可攔截粒徑1.5mm;
2、有效過濾面積為實際通徑面積3倍以上,見標準HG/T21637-1991中8.4條文規定。
3、在線清洗裝置正式啟用前,必須沖洗、清理整個管道系統,包括水泵入口的過濾器等(過濾器精度必須小于5mm),排除安裝過程造成系統中的焊渣、鐵絲、木片、塑料以及鋼管氧化皮等雜志,排盡系統中的黃銹水。
4、在線清洗裝置并不能取代化學水處理的緩蝕和殺菌滅藻的作用,所以,安裝冷凝器在線清洗裝置是還必須按國家有關標準進行化學水處理,但是可以提高濃縮倍數,減少含化學藥劑濃水的排放量。
5、膠球泵的使用和保養:
a.啟動:以點動方式檢查泵的轉向是否正確,不得長時間反轉;啟動前,在非灌注情況下,設置底閥時,應加灌足量引水,在不設底閥時應采用抽真空引水方式;確認可正常啟動時,即接通電源,調節軸封呈滴漏狀態(嚴禁無水運轉)。
b.進出口設置壓力表(進口為吸上狀態時設真空表),以監測泵運行狀態。在啟動時應關閉這些表計,正常運轉后打開表計,調節到所需運行工況。
c.運轉:當泵進入正常工作狀態后,需經常檢查電機溫升情況,軸承溫升不應超過35℃,極限溫度不應大于75℃。
d.使用和保養:泵運行1000小時后,應進行檢查。
e.膠球發球泵出口必須加裝截止閥與止回閥。
f、膠球發球泵故障原因及消除方法
故障現象 | 原因 | 消除方法 |
1.震動及雜音 | 1、基礎不牢或松動 2、吸程過高或管內存氣 3、雜物阻塞 4、旋轉件過量磨損 | 1、加固 2、降低泵位,排氣 3、排除 4、更新 |
2、啟動后不出水 | 1、吸程過高或排氣未盡 2、進水管路進氣 3、雜物阻塞 | 1、降低泵位,繼續排氣 2、調整消除 3、清理 |
3、流量、揚程不足 | 1、同上 2、葉輪密封間隙增大 3、葉片磨損 | 1、同上 2、調整間隙或更換零件 3、更換葉輪 |

上一篇 : 沒有了
下一篇 : 沒有了